Parcelforening Obstrupparken
Sitemap
  • Nyheder
  • Bestyrelsen
  • Referater
    • Bestyrelsesmøder
      • Bestyrrelsesmøde d. 2025 12 Mar
      • Bestyrelsesmøde d. 2024 27 Feb
      • Bestyrelsesmøde d. 11/07-22
      • Bestyrelsesmøde d. 14/09-21
    • Generalforsamlinger
      • Generalforsamling d. 2025 29/06
      • Generalforsamling d. 2024 16/06
      • generalforsamling d. 2023 11/06
      • generalforsamling d. 2022 19/06
      • generalforsamling d. 2021 06/06
      • generalforsamling d. 2020 09/06
      • generalforsamling d. 2019 06/05
      • generalforsamling d. 2018 24/05
      • generalforsamling d. 2017 23/07
      • generalforsamling d. 2016 20/06
    • Tulshøjparken
      • Generalforsamling 2025 6 Maj
  • Vedtægter
    • vedtægter for Obstrupparken v. 2
    • vedtægter for Obstrupparken v. 1
  • Historie

Historie

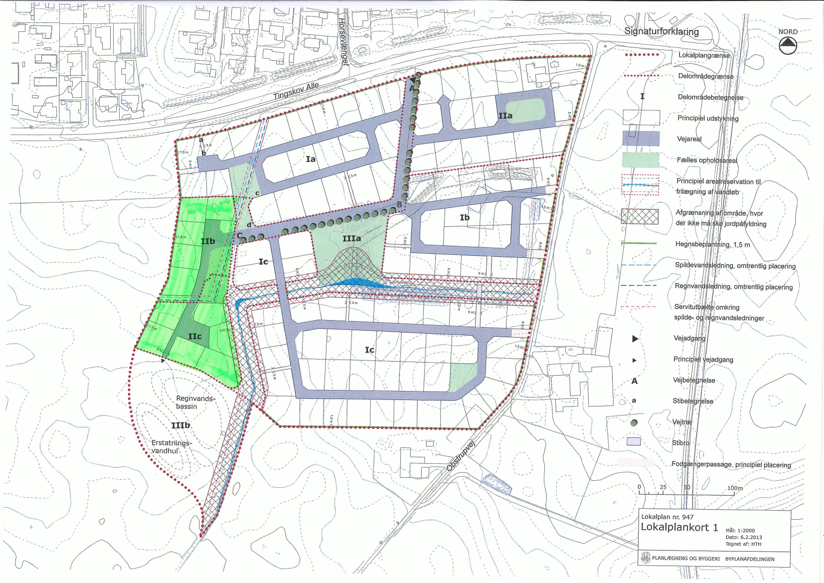
Parcelforening Obstrupparken blev stiftet i dec 2015. Tranbjerggård overdrog hermed jorden til byggefirmaet Brd. Thyboe som byggede 31 rækkehuse i to plan samt 2 etplanshuse. De sidste huse stod færdige sommeren 2016. Foreningen råder over flere små fællesarealer samt en stort grønt område. Nedenfor ses lokalplanen fra 2013 og kort herfra. 
 
Lokalplan 947 fra 2013
Bricksite.com